AULICO UFFICIO DI RAPPRESENTANZA IN CENTRO STORICO

4.000 € / mese
341 m2
Codice
A000142
Città
Torino (Centro/ Giardini Reali/ Repubblica)
Categoria
Ufficio
Spese condominiali
4.800 €
Locali
8
Classe energetica
B
17,82 kWh/m³a
Stato Immobile
Ristrutturato
Grado
Signorile
Posizione
Centro Storico
Riscaldamento
Autonomo
Tipo Riscaldam.
Caldaia
Tipo Impianto
Radiatori
Acqua Calda
Autonoma
Infissi
Legno Doppio Vetro
Pavim. Bagno
Ceramica
Pavimento
Parquet
Cauzione
Tre Mesi
Tipo Contratto
6+6 Anni
Accesso Disabili
Nessuna Barriera
Tipo Registr.
Tradizionale
Accessori
Aria Condizionata, Ascensore, Doppi Vetri, Portineria/Custode, Rete Dati
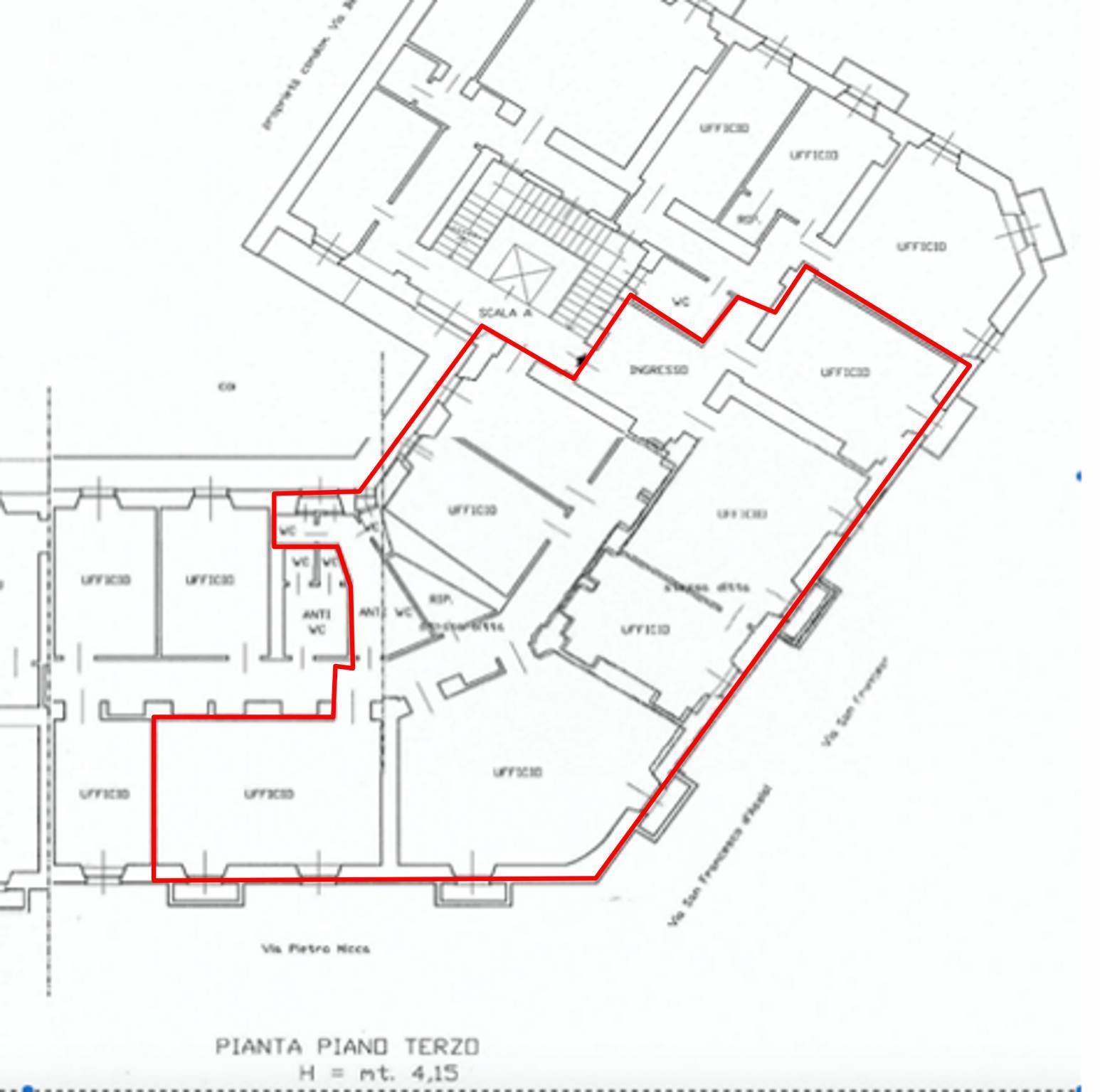
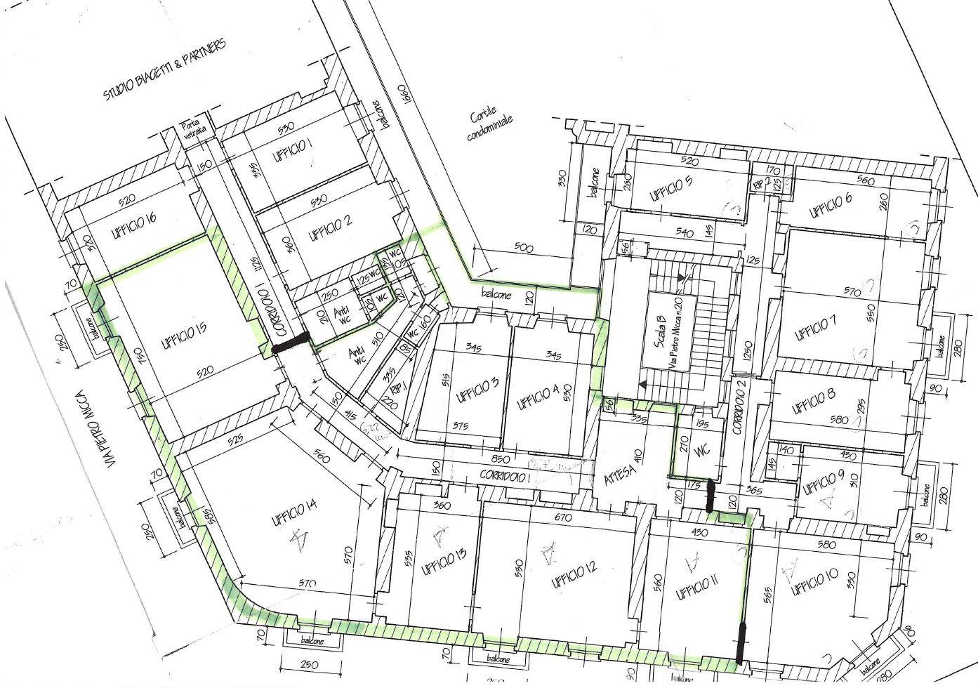
A pochi passi da Piazza Solferino, e più precisamente in via Pietro Micca , in signorile stabile d'epoca ottocentesco dotato di portineria e con piacevole androne d'accesso, affittasi al 3° piano (con escensore a norma disabili), un aulico ufficio di rappresentanza di circa 341 mq così composti:

Doppio ingresso da pianerottolo su ampio disimpegno, sette vani con ampie sale riunioni divisibili, doppi servizi e cinque balconi di affaccio su via San Francesco d'Assisi e su via Pietro Micca.

Di pertinenza vi è un' ampia ed asciutta cantina. (eventualmente uso archivio).

L' ufficio è totalmente ristrutturato; i pavimenti sono in parquet (in alcune stanze sono originali dell'800), i soffitti sono molto alti e presentano affreschi restaurati dell'epoca; alcuni sono a volta altri con controsoffittatura totalmente nuova.

L'impianto di riscaldamento è autonomo ed è presente l'aria condizionata.

L'ufficio è cablato e l'impianto elettrico è a norma.

Lo stato di manutenzione dello stabile è ottimo; attualmente è in corso il rifacimento delle facciate; il tetto è stato rifatto.

L'ufficio sarà libero ed immediatamente disponibile alla locazione dal 1 LUGLIO 2025

Contratto 6+6

Il canone è soggetto ad IVA (loca società).

Sono rischieste referenze.

La struttura singorile del palazzo e la sua posizione lo rendono di sicura rappresentanza; la facciata in mattoni a vista, le colonnine ed i basso rilievi attorno alle finestre così come lo scalone in marmo nero dell'ingresso ed il porticato interno del cortile contribuiscono al suo fascino.

Trattasi quindi di un'ottima e valida soluzione di locazione commerciale adatta a tutte quelle società o professionisti che desiderano distinguersi ed avere una location di rappresentanza.

Per fissare un appuntamento potete contattarmi al 333- 7254672

Distanze:

Piazza Solferino: 100 mt
Piazza Castello: 500 mt
Stazione di Porta Susa: 1200 mt

Mappa

via Pietro Micca 20, Torino (TO)

Condividi

Cookie preference