IMMOBILE CIELO TERRA A REDDITO RESA 12,02%

1.600.000 €
3066 m2
Codice
V000259
Città
Asti
Categoria
Stabile / Palazzo
Locali
100
Classe energetica
In fase di valutazione
Stato Immobile
Buono
Lati Liberi
4
Riscaldamento
Autonomo
L’agenzia immobiliare bmb propone in vendita questo immobile cielo-terra DA REDDITO, edificato negli anni ’70, composto di n. 4 piani fuori terra, ottimamente locato con validi conduttori ed attualmente con una resa annua del 11,31%.
Il compendio immobiliare è situato a pochi metri dal centro storico della città, con affaccio su uno dei corsi più importanti e caratterizzato da un grande passaggio sia dal punto di vista veicolare che pedonale; l’area è servita da mezzi di superficie con fermate nelle immediate vicinanze, sono presenti numerose attività, supermercati e servizi in genere.

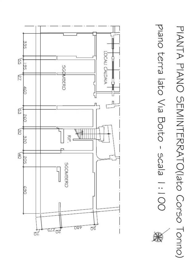
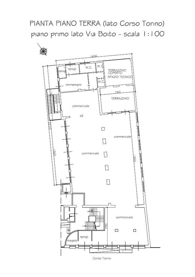
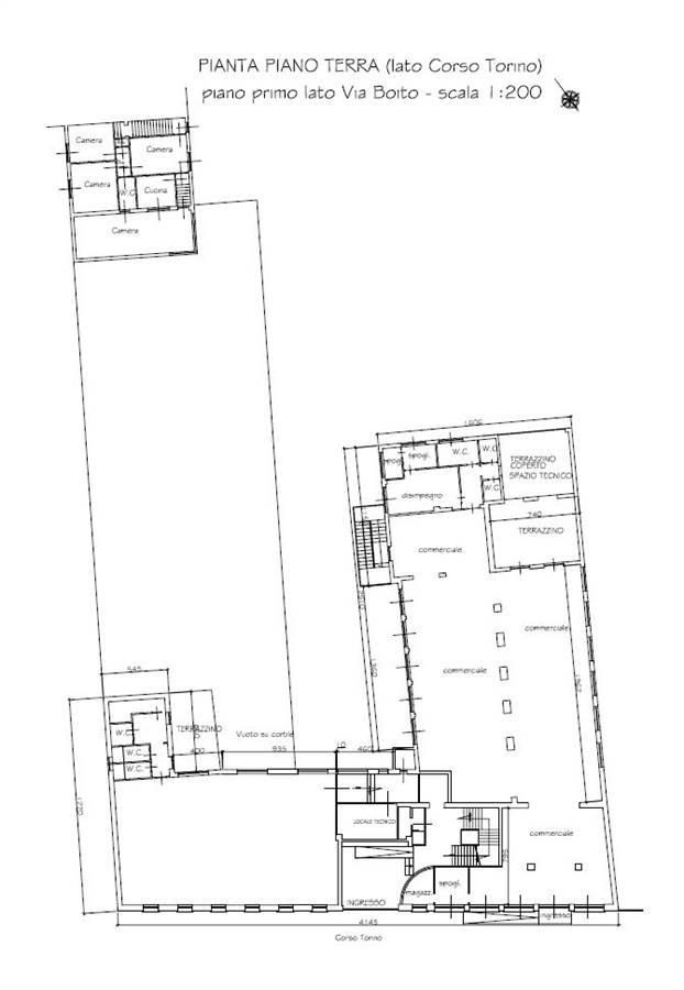
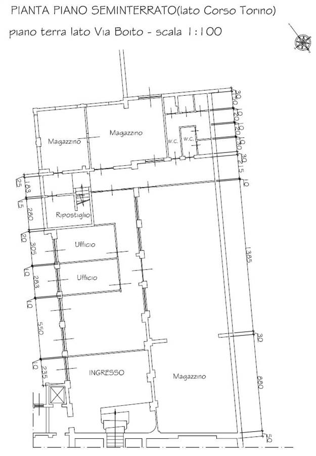
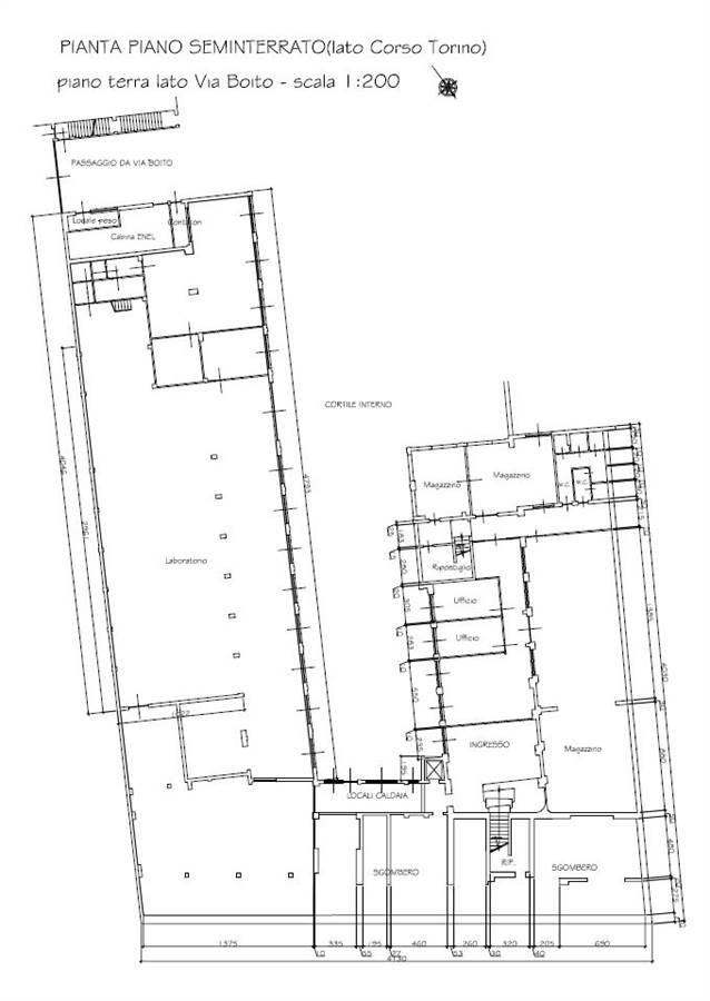
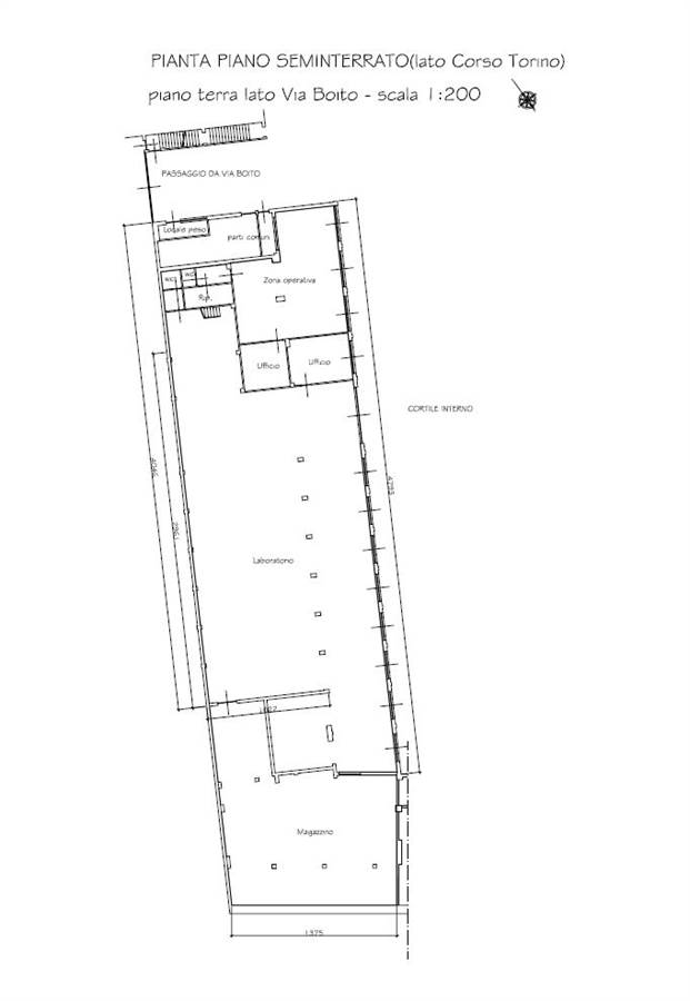
La superficie totale dell’immobile è di 3.066 mq ed è così suddivisa:

Con accesso da Corso Torino 20:

Locale commerciale piano terra di 485 mq locato;

Locale pubblico servizio piano terra di 280 mq locato all’Agenzia delle Entrate;

Residenziale primo piano di complessivi 290 mq, costituito da 7 monolocali e 1 bilocale tutti locati;

Superficie terziaria al piano primo di 146 mq locata a uno studio medico;

Superficie terziaria al secondo piano di 400 mq sempre locati ad Agenzia delle Entrate;

Con accesso da Via Boito 17:

Locale ad uso magazzino di 267 mq locato ad impresa edile;

Capannone di 820 mq locato ad impresa edile;

Locali ad uso magazzino e deposito di 278 mq liberi;

Un alloggio di 100 mq attualmente sfitto;

N° 12 posti auto.

Vende società SPA (IVA e possibilità di reverse charge).

Gli attuali canoni di locazione annui garantiscono una resa del 11,31% .

Trattasi quindi di un’ottima opportunità ad uso investimento con inquilini referenziati presente sul territorio astigiano in una valida zona della città adatta ad investitori alla ricerca di un buon asset immobiliare da reddito.


Asti è un comune italiano di 73 189 abitanti, capoluogo dell'omonima provincia piemontese e già capitale dell'antica Astesana, oggi più comunemente definita Astigiano.

È conosciuta per i suoi vini, in particolare l'Asti spumante: ogni anno, a Settembre, vi si tiene uno dei concorsi enologici più importanti d'Italia, denominato la Douja d'Or. Celebre è anche il suo Palio storico, manifestazione tra le più antiche d'Italia, che si svolge a Settembre e culmina con una corsa di cavalli montati "a pelo" (senza sella).

Asti si trova a circa 55 chilometri a sud-est di Torino, nella valle del fiume Tanaro il quale, dopo aver ricevuto gli affluenti Borbore, Valbrenta e Versa, la delimita a sud. La città sorge in mezzo a celebri colline, tra le Langhe e il Monferrato, famose in tutto il mondo per i loro vini ed è in una posizione favorevole quasi nel cuore del Piemonte.

Mappa

Corso Torino 18 , Asti (AT)

Agenti venditori

Balbo Mauro

Balbo Mauro

+39 333 7254672
maurobalbo@bmb-realestate.com

Condividi

Cookie preference