INTERO EDIFICIO COMMERCIALE IN VENDITA AD IVREA

1.200.000 €
3966 m2
14 Bagni
Codice
V000253
Città
Ivrea
Categoria
Ufficio
Locali
70
Classe energetica
C
Stato Immobile
Buono
Lati Liberi
4
Riscaldamento
Centralizzato
Tipo Riscaldam.
Caldaia
Tipo Impianto
Radiatori
Fonte Energetica
Gasolio
Acqua Calda
Autonoma
Raffrescamento
Centralizzato
Infissi
Metallo
Serramenti
Buono
Accessori
Aria Condizionata, Doppi Vetri
Ubicato nel Comune di Ivrea (TO), in zona semicentro, proponiamo in vendita un ampio fabbricato commerciale che sviluppa una superficie lorda di circa 4.000 mq non totalmente occupato ma con attualmente la presenza di un centro polifunzionale adibito a palestra con studio medico.

Le superfici risultano così ripartite:

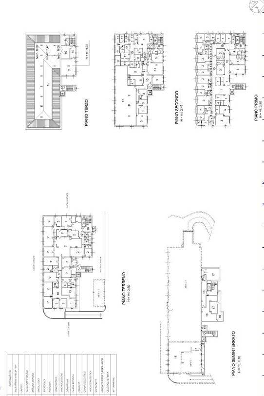
Piano Terra:
16 uffici, due locali deposito, disimpegni e servizi igienici, tre sale d'attesa/reception, due vani scala, più una cabina elettrica, rispettivamente serviti da ascensore e montacarichi; Deposito con servizio igienico (ex Cabina telefonica)

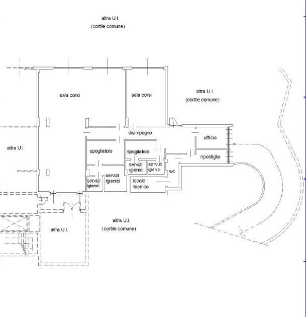
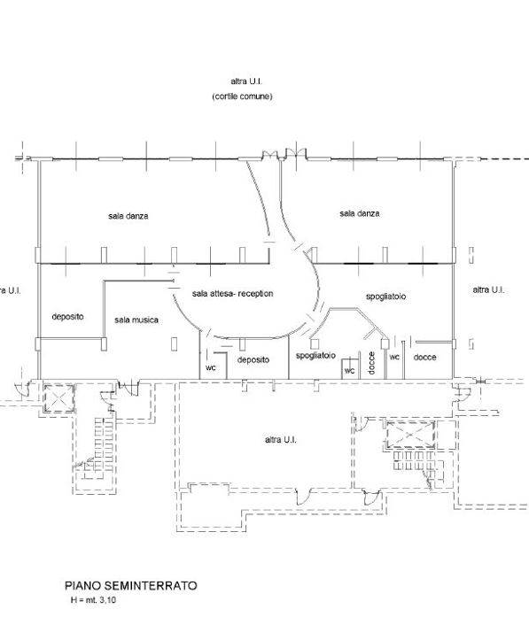
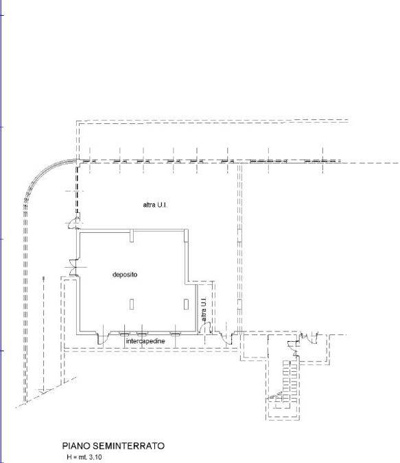
Piano Seminterrato:
- n.2 sale corsi, disimpegno, due blocchi spogliatoi con servizi igienici, ufficio, ripostiglio, servizio igienico e locale tecnico.
- Sala d’attesa-reception, n.2 sale danza, sala musica, due blocchi spogliatoi con servizi igienici e n.2 depositi.
- Autorimessa, tre locali tecnici a cielo libero, deposito, due locali adibiti a centrale termica, disimpegni; più un locale deposito.

Piano Primo:
9 sale d'attesa/reception, diciotto sale mediche/visita, oltre a spogliatoi, depositi e disimpegni nonché servizi igienici;

Piano Secondo:
palestra, cinque sale visite, nove localie adibiti a "cabina estetica", oltre a depositi, disimpegni, spgliatoi e servizi igienici;

piano Terzo:
disimpegni, deposito, sottotetto ad uso sgombero.

Completa la proprietà area esterna di pertinenza esclusiva al piano terreno adibita parzialmente a parcheggio, area di manovra ed area a verde.

L'edificio si presenta generalmente in buone condizioni manutentive e presenta struttura in c.a. con prospetti prefabbricati in Cemento armato.

Per quanto riguarda le unità immobiliari oggetto di valutazione, queste ultime si presentano internamente in buone condizioni di manutenzione con finiture interne di qualità standard adatte al tipo di destinazione (terziaria/commerciale).

I pavimenti sono di tipo "flottante" in gres/pvc nella zona uffici, in gres porcellanato/marmo/graniglia di marmo/laminato e cemento armato battuto nel resto dell'edificio,

L'esterno presenta asfalto ed autobloccanti per la zona adibita a parcheggio e porzioni a verde; le pareti sono intonacate e tinteggiate ed in parte con rivestimenti in ceramica, le porte interne
sono lignee, mentre i serramenti esterni sono in alluminio e vetri doppi.

Il riscaldamento degli ambienti è garantito da ventilconvettori e termoconvettori, serviti da caldaia a biomassa (pellet).

In considerazione della tipologia e delle caratteristiche costruttive e distributive, l'immobile si presterebbe ad ulteriore frazionamento. Ai fini della fungibilità, le destinazioni d'uso compatibili sono esclusivamente quelle attuali (commerciale/terziaria).

Attualmente l'immobile è in parte occupato da Studi di Consulenza e Liberi Professionisti.

Vende società bancaria. ( iva ); possibilità di applicare il reverse charge.

Per maggiori informazioni e poter fissare un appuntamento, potete contattarmi al seguente numero: +39 3337254672

Mappa

Corso Vercelli 104, Ivrea (TO)

Agenti venditori

Balbo Mauro

Balbo Mauro

+39 333 7254672
maurobalbo@bmb-realestate.com

Condividi

Cookie preference